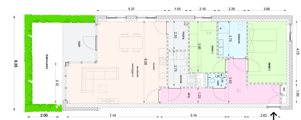
Woningtype A
Begane grond terras + tuin







Dit ruime hoekappartement is georiënteerd op het noordwesten. Het appartement beschikt over twee slaapkamers, ruime woonkamer met open keuken, badkamer met inloopdouche en dubbele wasbak, separaat toilet, bergruimte c.q. installatieruimte en een tuin omheind door een haag van 1.2mtr hoog.. De woning is energielabel A+++ en duurzaam uitgerust met o.a. vloerverwarming en warmtepomp. Elk appartement wordt opgeleverd met een berging op het souterrain en eigen parkeerplaats.
- Appartement: ca. 99 m2
- Loggia: ca. 8 m2
- Tuin: ca. 12 m2
- 444.500 v.o.n.
Begane grond
- Begane grond
Oriëntatie
Andere appartementen
Woningtype A
Dit ruime hoekappartement is georiënteerd op het noordwesten.
- Appartement: ca. 99 m2
- Loggia: ca. 8 m2
- Vanaf 434.500 v.o.n.
Locatie appartementen
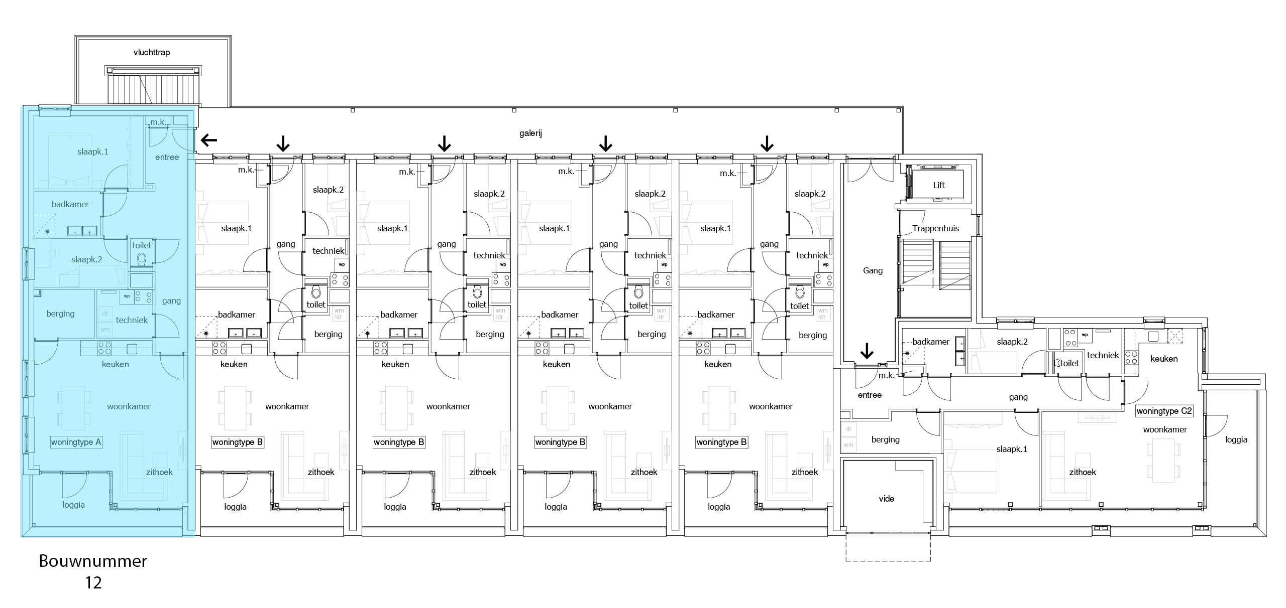
1e verdieping – nummer 12
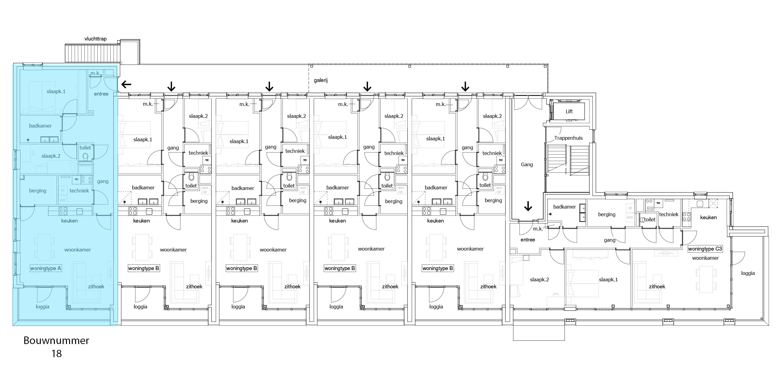
2e verdieping – nummer 18
Woningtype B
Begane grond terras + tuin
Dit ruime appartement heeft zowel een uitzicht op de levendige Rijksweg Boulevard als het aangrenzende natuurgebied.
- Appartement: ca. 87 m2
- Loggia: ca. 8 m2
- Tuin: ca. 12 m2
- 334.500 v.o.n.
Locatie appartementen
Begane grond – nummer 2 t/m 5
Woningtype B
Dit ruime appartement heeft zowel een uitzicht op de levendige Rijksweg Boulevard als het aangrenzende natuurgebied.
- Appartement: ca. 87 m2
- Loggia: ca. 8 m2
- Vanaf 343.500 v.o.n
Locatie appartementen
1e verdieping – nummer 8 t/m 11
2e verdieping – nummer 14 t/m 17
3e verdieping – nummer 21
Woningtype B1
Dit ruime appartement heeft zowel een uitzicht op de levendige Rijksweg Boulevard als het aangrenzende natuurgebied.
- Appartement: ca. 87 m2
- Loggia: ca. 8 m2
- 385.000 v.o.n.
Locatie appartementen
3e verdieping – nummer 20
Woningtype C1
Begane grond terras + tuin
Dit ruime hoekappartement is georiënteerd op het zuidwesten.
- Appartement: ca. 86 m2
- Loggia: ca. 28 m2
- Tuin: ca 40 m2
- 399.000 v.o.n
Locatie appartement
Begane grond – nummer 1
Woningtype C2
Dit ruime hoekappartement is georiënteerd op het zuidwesten.
- Appartement: ca. 96 m2
- Loggia: ca. 23 m2
- 447.500 v.o.n.
Locatie appartement
1e verdieping – nummer 7
Woningtype C3
Dit ruime penthouse heeft een uitzicht op het zuidwesten.
- Appartement: ca. 108 m2
- Loggia: ca. 22 m2
- 479.500 v.o.n.
Locatie appartement
2e verdieping – nummer 13
Woningtype C4
Dit ruime penthouse heeft een uitzicht op het zuidwesten.
- Appartement: ca. 108 m2
- Loggia: ca. 22 m2
- 489.500 v.o.n.
Locatie appartement
3e verdieping – nummer 19
Interesse?
Schrijf u direct in
De woningen zijn momenteel in volle ontwikkeling. Wilt u als eerste aanspraak maken op één van de appartementen? Lees meer over de verkoopprocedure of schrijf u direct in op onze procedure pagina.
Download de online brochure
Benieuwd naar meer informatie en technische gegevens? Download dan direct de online brochure.